Top.Mail.Ru
Бесплатная консультация, первичная и вторичная недвижимость в Анапе
Для покупателей в новостройках услуги бесплатны
Получить выгодную ипотеку
Наши офисы
Ул. Маяковского, 161
Бесплатная консультация, первичная и вторичная недвижимость в Анапе
Получить выгодную ипотеку
Смотрите свежие обзоры о недвижимости на Ютуб-канале Андрея Ворсова
Скидки, акции, инсайдерская информация о застройщиках выгодных объектах и многое другое

Дом площадью 84 кв.м на участке 6.00 сот, код - 19221

Краснодарский край, Цибанобалка с
Район: Цибанобалка
107 143 р.
цена за кв. м
1
этажей в доме
Код - 19221
Комфортный сервис с Эксперт+
Если у вас нет времени заниматься вопросами недвижимости, то соберём все документы. Вам нужно лишь подписать договор онлайн, без приезда в офис
Подробнее
Выбирайте лучшее
Сохраняйте объект, которые вам приглянулся в "Избранное", чтобы не потерять его. Вдруг это и будет ваша будущая недвижимость
Подробнее
Ипотека легко!
Подберём для вас лучшие условия по ипотеке.
Наш опыт и возможности позволяют быстро
определить идеальные варианты.
Подробнее
С заботой о вас
Позаботимся о том, чтобы вы выбрали лучший
вариант, который будет радовать ваш всю жизнь.
Подробнее
Описание
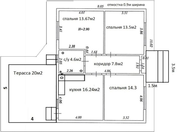
Не упустите шанс стать счастливым обладателем этого уютного дома с прекрасным ремонтом! Вас ждет просторная площадь в 84 кв.м., 4 комнаты и 1 этаж в 1-этажном доме. Этот вариант подойдет как для семьи с детьми, так и для молодых семей и пожилых родственников. Особенно порадует удобное расположение объекта. Рядом с домом находятся детский сад №44 "Аленушка" и средняя общеобразовательная школа №16 в селе Цибанобалка. А также супермаркеты "Магнит" и "Пятёрочка" всего в 100 метрах от дома. Дом имеет 3 спальни, кухню, санузел и большую террасу площадью 20 кв.м. Удобства газа и центральной воды по меже. Сейчас в доме проведен свежий современный ремонт, что делает его идеальным вариантом для тех, кому важны комфорт и уют в доме. Не упустите возможность стать обладателем этого уникального предложения и наслаждаться своим собственным уютным уголком! Звоните прямо сейчас и записывайтесь на просмотр!
Получите больше информации, позвонив по номеру телефона +7 (800) 350-30-39 или пишите в WhatsApp по номеру +7 (988) 133-54-57. Звонок бесплатный!
Поделиться в соц.сетях
Записаться на просмотр
С вами свяжется специалист по недвижимости, подтвердит вы­бранное время просмотра, организует посещение предложения и проведёт вам экскурсию.
Пожалуйста, подтвердите, что вы не робот.
Крапивин Владимир
Ваш личный консультант
+79284021484 Позвонить Задать вопрос