Top.Mail.Ru
Бесплатная консультация, первичная и вторичная недвижимость в Анапе
Для покупателей в новостройках услуги бесплатны
Получить выгодную ипотеку
Наши офисы
Ул. Маяковского, 161
Бесплатная консультация, первичная и вторичная недвижимость в Анапе
Получить выгодную ипотеку
Смотрите свежие обзоры о недвижимости на Ютуб-канале Андрея Ворсова
Скидки, акции, инсайдерская информация о застройщиках выгодных объектах и многое другое

Дом площадью 138 кв.м на участке 3.30 сот, код - 19165

Краснодарский край, Супсех с, Никольская ул, 15
Район: Супсех
79 710 р.
цена за кв. м
2
этажей в доме
Код - 19165
Комфортный сервис с Эксперт+
Если у вас нет времени заниматься вопросами недвижимости, то соберём все документы. Вам нужно лишь подписать договор онлайн, без приезда в офис
Подробнее
Выбирайте лучшее
Сохраняйте объект, которые вам приглянулся в "Избранное", чтобы не потерять его. Вдруг это и будет ваша будущая недвижимость
Подробнее
Ипотека легко!
Подберём для вас лучшие условия по ипотеке.
Наш опыт и возможности позволяют быстро
определить идеальные варианты.
Подробнее
С заботой о вас
Позаботимся о том, чтобы вы выбрали лучший
вариант, который будет радовать ваш всю жизнь.
Подробнее
Описание
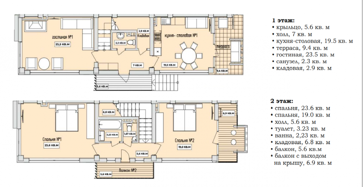
Представляем вашему вниманию современные дуплексы с эксплуатируемой кровлей! Преимущества комплекса: • Просторные планировки: 138 кв.м на блок с участком 3,3 сотки • Современный дизайн: стиль хай-тек, панорамное остекление • Индивидуальная собственность: на дом и земельный участок • Черновая отделка: возможность воплотить любые дизайнерские решения • Уникальная особенность: эксплуатируемая кровля для отдыха под открытым небом Комфорт и технологии: • Коммуникации: центральное водоснабжение, скважина 76 м, септик • Отопление: двухконтурный газовый котел • Электричество: 7,5 кВт на блок • Монолитный каркас: гарантия надежности и долговечности • Качественные материалы: утепление, пластиковые стеклопакеты, металлическая дверь Планировка: • Первый этаж: кухня-столовая (19,5 кв.м), гостиная (23,5 кв.м), терраса (9,4 кв.м) • Второй этаж: 2 спальни, 2 санузла, 2 балкона • Дополнительные помещения: кладовые, холл Расположение и инфраструктура: • До моря: 1 км до берега моря • До Анапы: 7,5 км Супсех — это не просто пригород Анапы, а настоящий оазис спокойствия и красоты. Посёлок славится своим чистым воздухом, великолепными видами на море и уникальной природой. Название «Су-Псех» переводится как «чистая вода», и это действительно место, где природа дарит свои лучшие дары. Не упустите возможность стать владельцем современного дома в живописном районе! Звоните прямо сейчас для просмотра и получения подробной информации. Дом вашей мечты ждет вас!
Получите больше информации, позвонив по номеру телефона +7 (800) 350-30-39 или пишите в WhatsApp по номеру +7 (988) 133-54-57. Звонок бесплатный!
Поделиться в соц.сетях
Записаться на просмотр
С вами свяжется специалист по недвижимости, подтвердит вы­бранное время просмотра, организует посещение предложения и проведёт вам экскурсию.
Пожалуйста, подтвердите, что вы не робот.
Гомозов Александр
Ваш личный консультант
+79385214780 Позвонить Задать вопрос